Process
We deliver our services in line with the RIBA Plan of Work, the industry-standard framework that organises the planning, design and construction of buildings into stages. The stages fall into three broad phases: concept design & planning (Stages 1–3), technical (Stage 4), and construction (Stages 5–6). We can provide a full service from the inception of a project through to handover of the completed build, or tailor our involvement to a defined part of the process. At each stage, we agree a clear scope before work begins.
The guide below provides an overview of the process and and what you can expect each stage, from the very beginning of a project through to a completed build.
The RIBA Plan of Work

1.
Preparation & Briefing
Stage 1 establishes the foundations of the project. We work with you to develop the brief, carry out a site appraisal and planning research, and undertake feasibility studies to test whether the site can accommodate your requirements. This is also a design stage: sketch design work is used to explore options and test the brief against the site, so that feasible approaches can be identified before the more detailed design process begins at Stage 2. A project budget and programme are established before the stage concludes.
At this stage:
Project brief
Site appraisal and planning research
Sketch design and feasibility studies
Project budget and programme
Stage 1 Report (a single document collating all of the above, which forms the basis for Stage 2)

Feasibility study for Shardeloes Road. We can test different sketch design options to develop the brief for future stages.

Sketch visualisation for Shardeloes Road. The design is developed in 3D and internal and external visualisations are produced.
2.
Concept Design
The options developed and tested during Stage 1 are brought forward and refined through an iterative design process, working towards a single agreed direction by the end of the stage. The spatial arrangement, key materials, and overall character of the project are established here. The agreed concept design and project brief are signed off at the end of Stage 2 before the project proceeds to Stage 3.
At this stage:
Design options and concept drawings
Sketch visualisations
Initial material palette
Stage 2 Report (the agreed concept design, packaged into a document that forms the basis for Stage 3)
3.
Spatial Coordination
Stage 3 is primarily about preparing and submitting the planning application, and developing the design to the level of detail required to do so. The agreed concept is developed and refined, and coordinated alongside building services design and preliminary structural design. On most residential projects, a structural engineer is not appointed until after planning permission is granted. In advance of that appointment, assumptions are made based on experience, with any significant structural risks highlighted where they may affect the planning design. External materials are confirmed at this stage, as they form part of the planning application.
Before Stage 4 can begin, a number of client decisions are required, most commonly relating to interior finishes, materials, fixtures and fittings. We guide clients through this process in advance of Stage 4 to ensure it can proceed efficiently.
At this stage:
Developed design drawings
Design and Access Statement
Planning application (and listed building consent application where applicable)
Stage 3 Report (the developed design, coordinated and documented, which forms the basis for Stage 4)

Example Stage 3 drawings, Shardeloes Road. By this stage the design is fixed: geometry of walls and roofs; window positions and sizes, external materials.
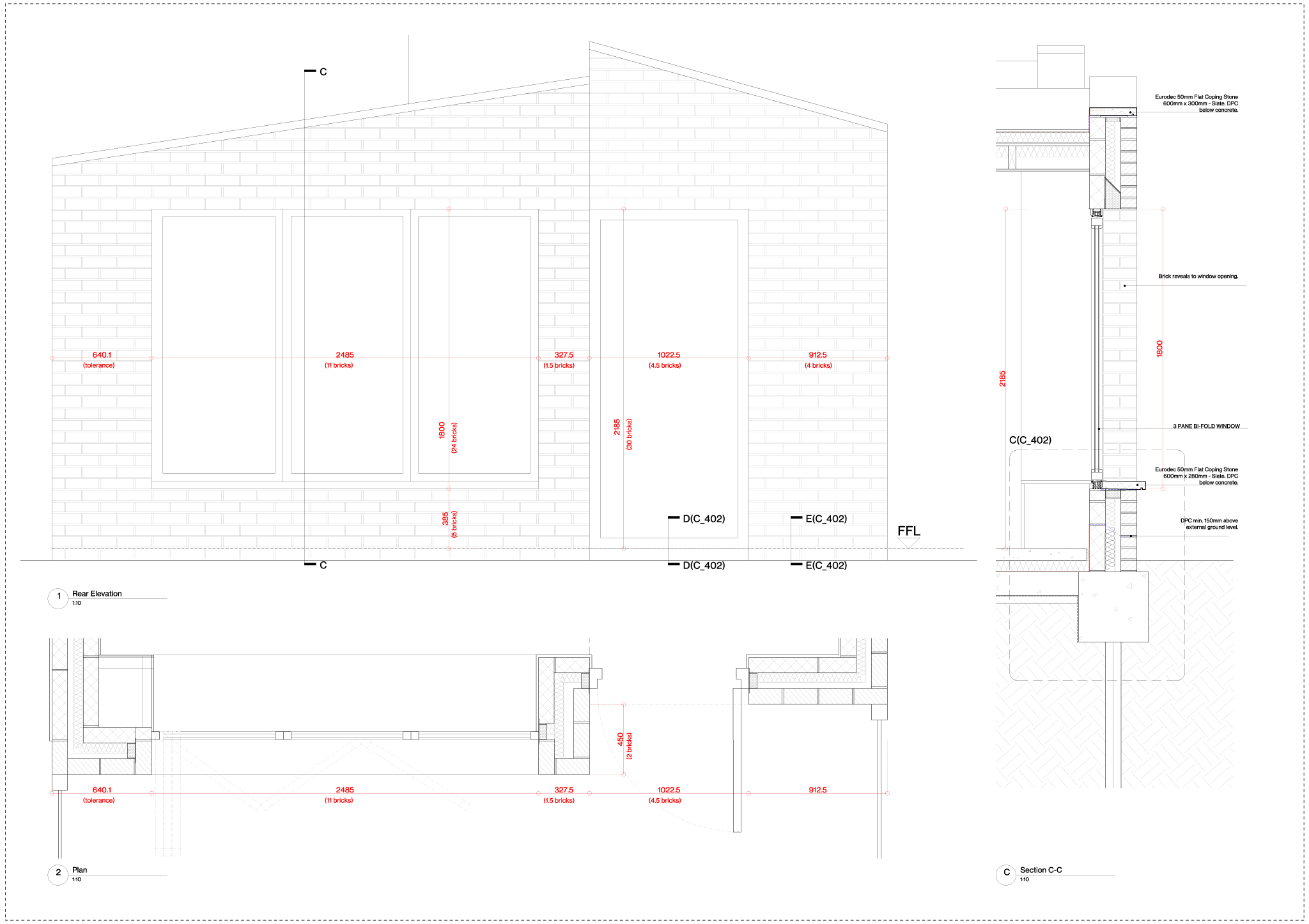
Technical drawings produced at Stage 4 for Shardeloes Road. These drawings cover everything from specifying wall or roof construction to setting out tiles and laying out electrical fittings.
4.
Technical Design
Stage 4 typically begins once planning consent has been granted. The Stage 3 design is developed in sufficient detail for tendering and construction. The scope of this stage ranges from the thermal and structural performance of the building envelope through to the specification of individual components, including joinery, ironmongery, and finishes. Where a structural engineer has not yet been appointed, one is appointed at this stage to produce structural calculations for building regulations. This information forms the basis for building regulations approval and for obtaining competitive tenders from contractors. We can manage the tender process, advise on contractor selection, and prepare the building contract.
At this stage:
Technical drawing package (plans, sections, elevations, construction details)
Specification and schedules
Building regulations application
Tender documents (drawings, schedules and specification issued to contractors for pricing)
Building contract
5.
Construction
Stage 5 is construction. The design is complete at the start of this stage, though site conditions and contractor queries will arise and require resolution. If appointed to do so, we can act as Contract Administrator: administering the building contract on the client's behalf, certifying contractor payments in line with work completed, and managing any design variations.
At this stage:
Site visits and progress monitoring
Responses to contractor design queries
Interim payment certificates (certifying payment to the contractor in line with work completed on site)
Management of design variations




Technical drawings produced at Stage 4 for Shardeloes Road. These drawings cover everything from specifying wall or roof construction to setting out tiles and laying out electrical fittings.

Shardeloes Road - the completed extension.
6.
Handover
By Stage 6, construction is complete and the emphasis shifts to closing out the building contract. We carry out a final inspection, record any defects for the contractor to resolve, and manage the defects rectification period, typically 12 months, during which the contractor remains responsible for making good any outstanding works. The final certificate is issued once all defects have been resolved.
At this stage:
Final inspection and snagging schedule
Handover package (as-built drawings, planning permissions, building control certificate, warranties, and O&M information)
Final certificate
Conclusion
We often begin projects with a standalone Stage 1 to establish the brief, test feasibility, and explore design directions before any further commitment is made. From there, a separate appointment through Stages 2 and 3 takes the project to planning. If consent is granted, Stage 4 follows, with the question of site involvement at Stage 5 agreed once a contractor is in place and the scope of that role is clear.
This keeps commitment proportionate to progress, with a clear scope and agreed fee at each phase before work begins. However the appointment is structured, we will be clear about what is included, what it costs, and what the next step is.
Get in touch to discuss your project - hello@aleccrisp.com


